|
|
Descriptions:
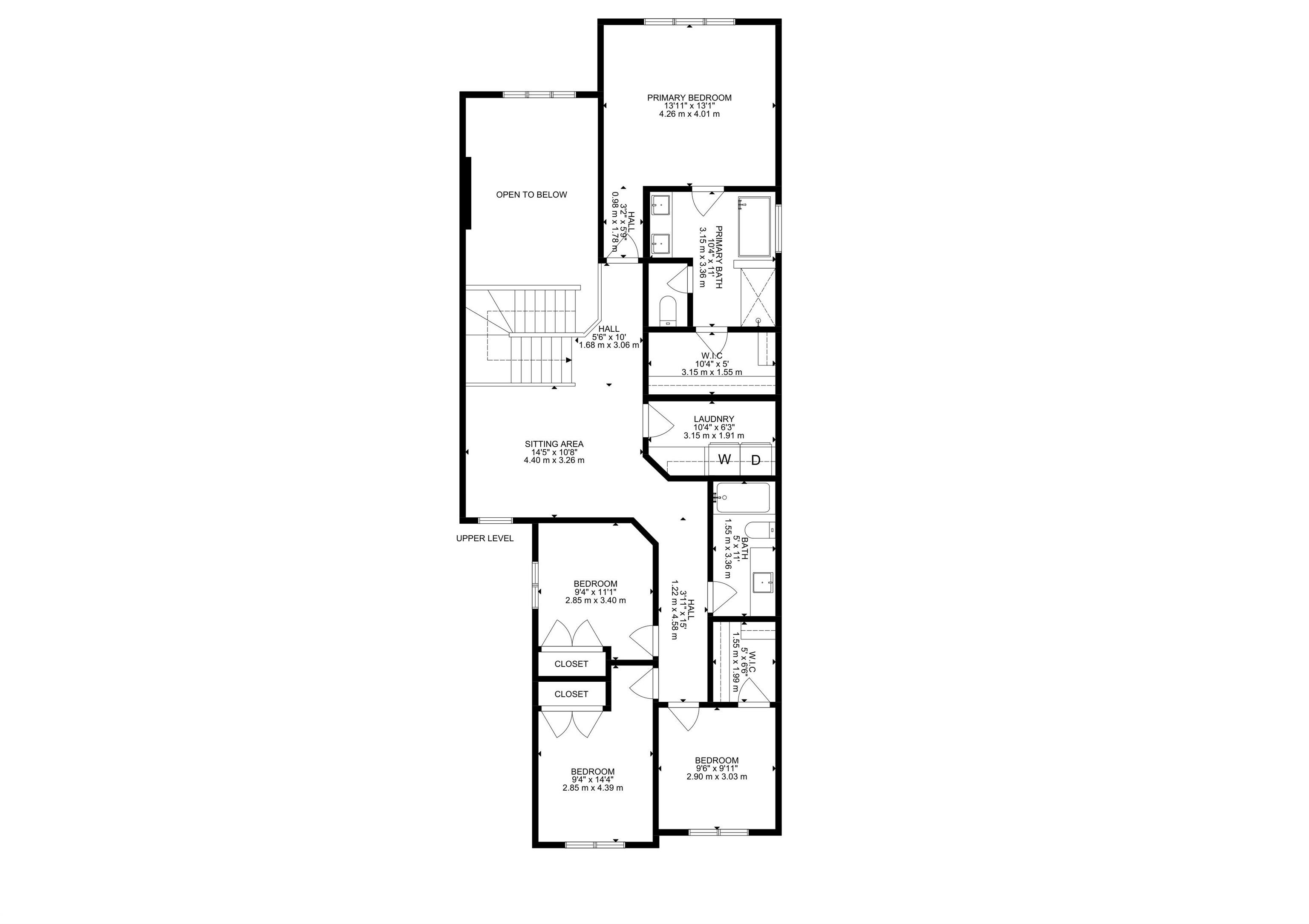
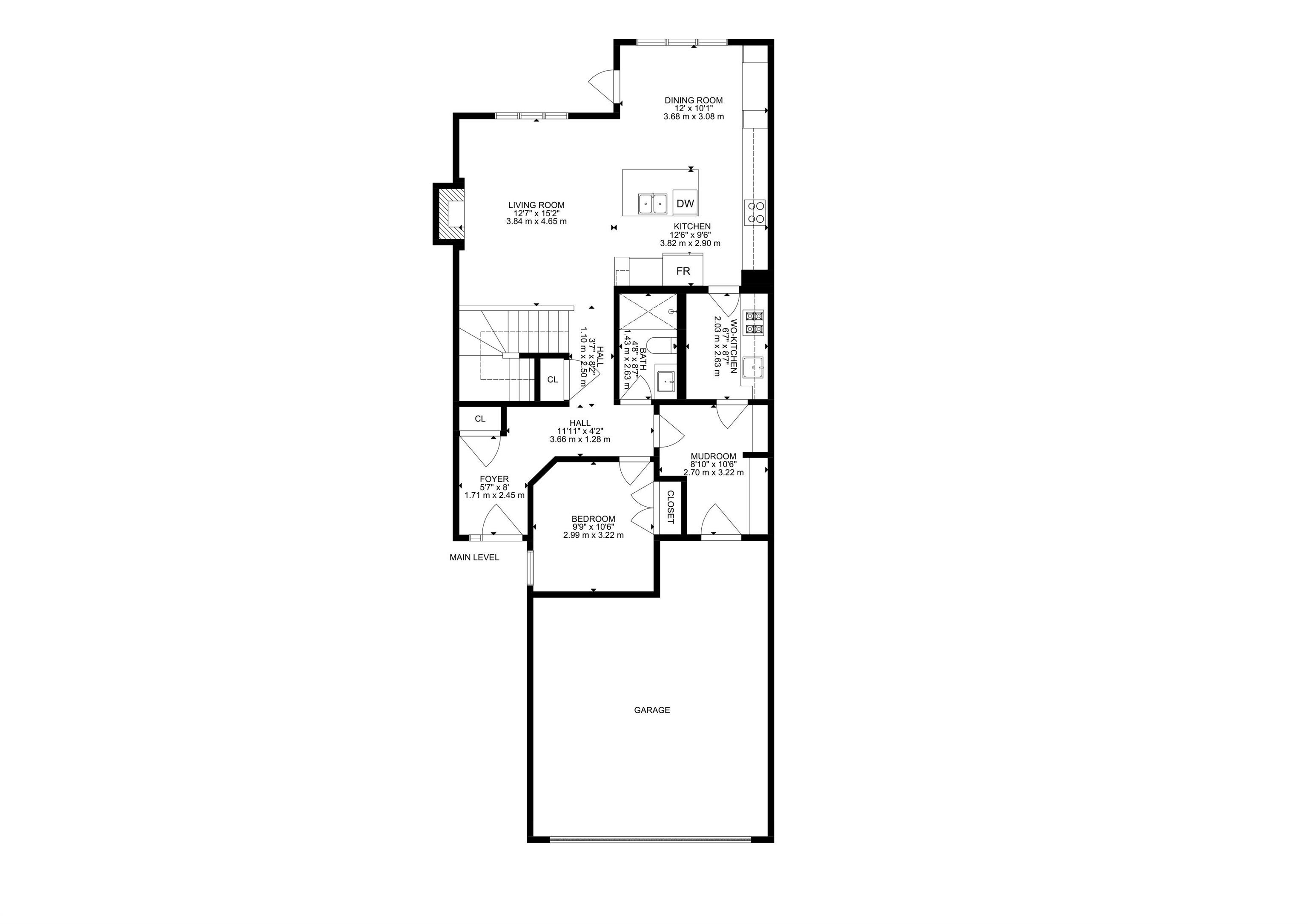
FINESSE BUILT HOMES quality and experience is evident in there new homes, Brand 2 storey new build with separate entrance and 2383 Sq Ft. This home has a roaring open concept with high ceilings,9 foot ceilings on the main and on the second floor, 8 foot interior doors giving you the spacious feel and is located in a private and amazing location in a private Culdesac. This home has a Large Butlers/spice kitchen pantry open concept with 4 bedrooms upstairs with a beautiful ensuite with corner tub and enclosed modern glass shower and large second floor laundry with plenty of cabinets and also a large bonus room overlooking a modern concept with modern finishing's. The main floor also has a extra bedroom/Den area and a beautiful open concept kitchen area and large mud room off the back garage door a full bath on the main and a oversized double garage. This home is amazing and provides perfect spaces for a growing family.
|
|
|
| Includes: |
|
Dishwasher-Built-In, Dryer, Garage Opener, Hood Fan, Oven-Built-In, Oven-Microwave, Refrigerator, Stove-Countertop Electric, Stove-Gas, Washer, Window Coverings |
|
|
|
|
|
| Site Influences: |
| Cul-De-Sac |
|
| Legal Description: |
| ACCESS Legal Description |
|
| Location & Listing Info: |
| Neighbourhood: |
Chappelle Area
|
|
| Lot Shape: |
Pie Shaped |
|
|
|
|
|
| Property Info: |
|
| Property Type: |
Detached Single Family |
| Home Style: |
2 Storey |
| Year Built: |
2025 |
| Total Floor Area: |
2,383 sq. ft. |
| Front Exposure: |
West
|
|
|
|
|
|
| Exterior: |
|
| Exterior: |
Cul-De-Sac |
| Front Exposure: |
West |
| Roof: |
Asphalt Shingles |
|
|
|
|
|
|
|
|
|
|
| Rooms: |
|
| Total Bedrooms: |
5
(Bedrooms Above: 5)
|
| Bathrooms: |
Full: 3
/ Half: 0
|
| Rooms Above: |
12 |
|
|
|
|
|
| Additional Info: |
|
| Heating: |
Y |
| Basement: |
Full, Unfinished |
| Basement Type: |
Full, Unfinished |
| Floor Finish: |
Carpet, Ceramic Tile, Vinyl Plank |
| Parking: |
Double Garage Attached, Over Sized |
|
|
|
|
|
|
|
|
|
|
|
|
|
|
|
 |
Contact Anthony Loughlean -
4107 99 street, Edmonton, Alberta, T6E 3N4
|
|
|
|
|
|
|
|
|
|
Copyright 2025 by the REALTORS® Association of Edmonton. All Rights Reserved. Data is deemed reliable but is not guaranteed accurate by the REALTORS® Association of Edmonton. Data was last updated December 21, 2025, 1:08 pm. |
|
|
|
|
The data included on this website is deemed to be reliable, but is not guaranteed to be accurate by the REALTORS® Association of Edmonton.
MLS®, Multiple Listing Service®, and the associated logos are all registered certification marks owned by CREA and are used to identify real estate services provided by brokers and salespersons who are members of CREA. The trademarks REALTOR®, REALTORS® and the REALTOR® logo are controlled by The Canadian Real Estate Association (CREA) and identify real estate professionals who are members of CREA. Used under license.
|