|
|
Descriptions:
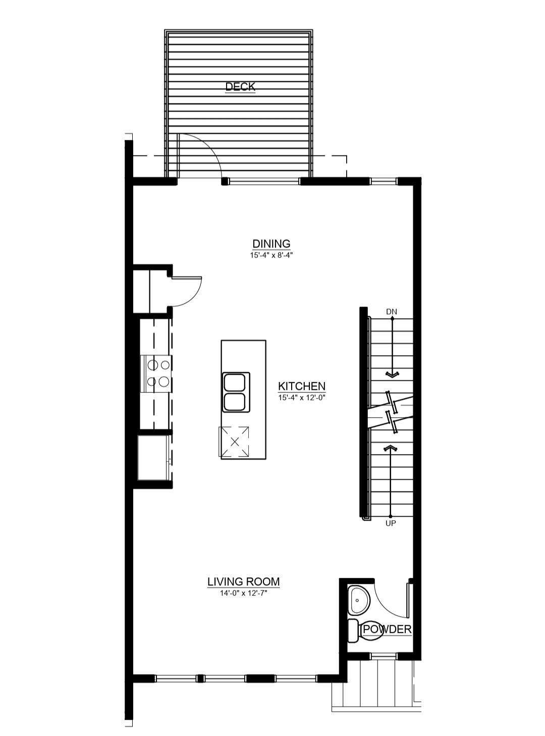
Welcome to Keswick--one of Southwest Edmonton's most desirable communities--& a standout End Unit townhome with no condo fees. Offering 1,465 sq ft of upgraded, open-concept living, this home delivers the perfect blend of style, function, and long-term value. The main floor impresses with floor-to-ceiling windows that flood the space with natural light, creating a bright & inviting atmosphere. The modern kitchen is designed to elevate everyday living, featuring quartz countertops, a large island, sleek cabinetry, & stainless steel appliances seamlessly connecting to the living and dining areas. Upstairs, you'll find 3 bedrooms, 2 full bathrooms, & convenient upper-floor laundry. The primary suite offers a spacious closet & a private ensuite with a glass shower. Enjoy your fully landscaped yard & deck rare for a townhome plus a double attached tandem garage over 31 feet deep, providing exceptional space for vehicles & storage. Complete with A/C & ideally located near parks, ponds & all amenities.
|
|
|
| Includes: |
|
Air Conditioning-Central, Dishwasher-Built-In, Dryer, Garage Opener, Microwave Hood Fan, Refrigerator, Stove-Electric, Washer, Window Coverings |
|
|
|
|
|
| Site Influences: |
| Fenced, Fruit Trees/Shrubs, Golf Nearby, Hillside, Landscaped, Low Maintenance Landscape, No Back Lane, Playground Nearby, Public Swimming Pool, Public Transportation, Schools |
|
| Legal Description: |
| ACCESS Legal Description |
|
| Location & Listing Info: |
|
|
| Lot Shape: |
Irregular |
|
|
|
|
|
| Property Info: |
|
| Property Type: |
Residential Attached |
| Home Style: |
2 Storey |
| Year Built: |
2019 |
| Total Floor Area: |
1,465 sq. ft. |
| Front Exposure: |
South
|
|
|
|
|
|
| Exterior: |
|
| Exterior: |
Fenced, Fruit Trees/Shrubs, Golf Nearby, Hillside, Landscaped, Low Maintenance Landscape, No Back Lane, Playground Nearby, Public Swimming Pool, Public Transportation, Schools |
| Front Exposure: |
South |
| Roof: |
EPDM Membrane |
|
|
|
|
|
|
|
|
|
|
| Rooms: |
|
| Total Bedrooms: |
3
(Bedrooms Above: 3)
|
| Bathrooms: |
Full: 2
/ Half: 1
|
| Rooms Above: |
6 |
|
|
|
|
|
| Additional Info: |
|
| Heating: |
Y |
| Basement: |
None, No Basement |
| Basement Type: |
None, No Basement |
| Floor Finish: |
Laminate Flooring |
| Parking: |
Double Garage Attached, Tandem |
|
|
|
|
|
|
|
|
|
|
|
|
|
|
|
 |
Contact Anthony Loughlean -
4107 99 street, Edmonton, Alberta, T6E 3N4
|
|
|
|
|
|
|
|
|
|
Copyright 2026 by the REALTORS® Association of Edmonton. All Rights Reserved. Data is deemed reliable but is not guaranteed accurate by the REALTORS® Association of Edmonton. Data was last updated April 9, 2026, 1:40 am. |
|
|
|
|
The data included on this website is deemed to be reliable, but is not guaranteed to be accurate by the REALTORS® Association of Edmonton.
MLS®, Multiple Listing Service®, and the associated logos are all registered certification marks owned by CREA and are used to identify real estate services provided by brokers and salespersons who are members of CREA. The trademarks REALTOR®, REALTORS® and the REALTOR® logo are controlled by The Canadian Real Estate Association (CREA) and identify real estate professionals who are members of CREA. Used under license.
|